Среди множества объявлений о недвижимости в районе Патрокла (на улицах Басаргина, Сочинской и Можайской) одно выделяется среди прочих – просторная квартира 345 кв.м. в 3-х этажном комплексе “Квадрохаус”, состоящий из 4-х квартир. И это не дом на Леопардовой набережной в “элитном районе “Патрокл”, это более старое строение по адресу ул. Басаргина, 3. Цена – 30 миллионов рублей. Судя по карте 2GIS и по отсутствию дома в реестре сайта Реформа ЖКХ он выведен из жилого фонда.
Квартира 3-х уровневая, 1-й и 2- й этажи из камня, с толщиной стен 1,2 м., 3-й этаж из кирпича. В жаркое время года камень сохраняет прохладу, в холодное время сохраняет тепло. Перекрытия этажей прочные из литого бетона. Имеется отдельная котельная с электро-котлом, котлом на жидком топливе и котлом на твердом топливе ( в пользовании первые два котла.), емкость для хранения топлива 1 тонна , емкость пресной воды подаваемой из скважины. Все окна-двойной стеклопакет. Этажи связаны красивой деревянной лестницей высокого качества. Все помещения санузлов и бассейна отделаны по всей высоте комнат кафелем. Полы в коридоре, на кухне, прихожей и санузлах из керамогранита , полы обогреваемые. Имеется свой септик.

Из коммунальных платежей оплачивается только электроэнергия, по показаниям счетчика.
В собственности квартира и земля ( 1/4 придомовой территории).
1-й Этаж : Просторный холл, кухня – столовая с мебелью, встроенной эл.плитой, и посудомоечной машиной. Большая гостиная комната с камином на дровах. Просторный совмещенный санузел. Имеется отдельная комната с сауной и бассейном размерами 2.3 х 2.3 и глубиной 1,95 м. выложены кафелем. Перед входом в квартиру есть просторное коридорное помещение с подогреваемым полом из кафеля.
2-й Этаж: Отдельная большая гардеробная комната с шкафами , просторный зал-спальня с камином на дровах и выходом на балкон. Вторая просторная спальная комната. Совмещенный санузел.
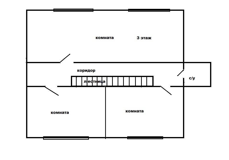
3 – й Этаж: Большая комната полностью отделанная деревом, две просторные гостевые комнаты. Совмещенный санузел.
На 1-м и 3-м этажах в санузлах душевые кабины, унитаз, раковины с шкафами и зеркалами , на 2-м этаже душевая кабина со встроенной ванной, унитаз , раковина с шкафом и зеркалом, все душевая кабина компании Appollo, унитаз , биде с гигиеническим душем.

