Голосуй за проект с Можайской ЗДЕСЬ
Инструкция как голосовать ЗДЕСЬ
В начале января стартовал конкурс “Твой проект” в рамках инициативного бюджетирования в Приморском крае. Заявки принимались до 31 января, затем они проходили отбор комиссией на соответствие критериями, а с 3 по 14 марта идет голосование. Всего было подано 860 заявок, в числе которых 116 из Владивостока, а 58 из них вышло на этап голосования.
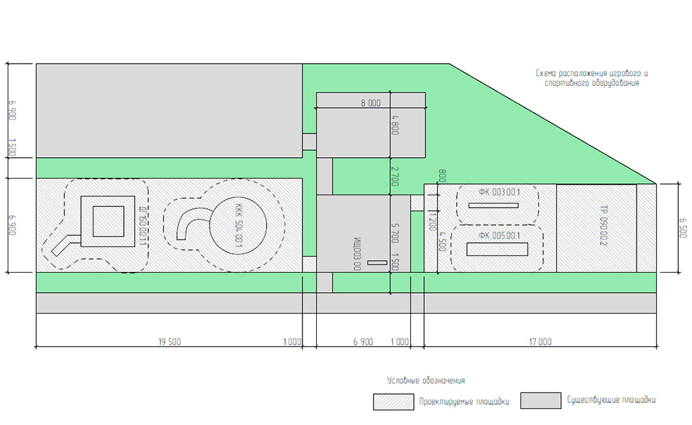
Из района Патрокл было направлено 4 заявки, одна из которых прошла отбор – за нее мы предлагаем всем дружно проголосовать! Проект “Территория спорта на Патрокле” подразумевает создание спортивного комплекса в районе улицы Можайской:
- Атлетический павильон. Тренажеры обладающие уникальной технологий изменения нагрузки. Она осуществляется за счет регулировки противовеса. В качестве отягощения используются несъемные диски-гантели из обрезиненной стали и система рычагов.
- Брусья двухуровневые гимнастические.
- Перекладина разноуровневая тройная.
- Детский городок с игровыми и спортиво-развивающими элементами.
- Гибкий элемент для лазания с горкой. Данная конструкция является уникальной для Приморья (указано в заявке). Активные перемещения внутри канатного комплекса помогают восполнить недостаток физической активности у детей в современных городских условиях.
- Укладка прорезиненного покрытия.
Что требуется от вас:
- Зарегистрироваться на сайте министерства финансов ЖМИ ССЫЛКУ
- Затем авторизоваться – ЖМИ ССЫЛКУ, введя адрес e-mail и пароль использованные при регистрации на первом шаге
- Зайти на страницу проекта ЖМИ ССЫЛКУ
- Прокрутить страницу вниз, увидеть кнопку “Проголосовать ЗА проект“ и нажать на неё

Проект ТОС “Патрокл-Сочинская” с лестницами и беседкой отбор, поданный одним из первых не прошел отбор, причем по мнению комиссии он не соответствует сразу всем критериям. Аналогичный вердикт получили также идеи с благоустройством бухты Соболь и побережья безымянного озера.
Еще один проект вблизи нашего района прошел отбор, однако имеет очень расплывчатое описание по благоустройству территории вокруг форта Линевича, который пребывает в печальном состоянии, а расположен в районе Добровольского, 37.
Также отбор по критериям прошел проект спортплощадки у искусственного озера на улице Сафонова.
Конкурс “Твой проект” вызывает смешанные чувства – с одной стороны хорошо, что у граждан появляется инструмент прямого внесения своих “хотелок” для реализации за счет бюджета (читай – за отобранные у них ранее в виде налогов деньги), однако с другой – ужасает тот спектр вопросов, которые граждане пытаются через него решить.
Пока во Владивостоке просят строить площадки для вело-спорта, скейт-парки, турники и даже места для выгула собак, в селах требуются совершенно базовые потребности – тротуары, освещение, водопровод… Мизерные в масштабах города и региона деньги напоминают подачку, а жители как голодные голуби должны броситься на горсть семок, отпихивая друг друга в голосовании.
Стыдно, дорогой ПрезиДедушка, очень стыдно нам за вас и ваши 20 лет “стабильности”. Чтобы уйти от полной неэффективности государства и бюджетного устройства страны мирным способом нужно избрание адекватных представителей в выборные органы власти. В сентябре нам предстоит выбрать депутатов госдумы и краевого парламента.
Изменились границы нашего округа на выборах в краевой парламент (почему это важно)
ТОС “Патрокл-Сочинская” подало заявку в конкурс “Твой проект” с предложением сцены и лестниц
Что изменится на Патрокле с принятием нового проекта планировки?


Не возможно зарегистрироваться-всё что-нибудь не так. Ровно 5 раз пыталась.